Direccion

Canning

Telefono

(011) 15 3856-2013

Whatsapp

1138562013

Volver

Volver al listado

Oportunidad

Lote interno con pulmon verde en Club de Campo Horizontes al sur

direccion Ruta 16 Km 1500, Guernica

Venta

USD 35.000

Características
tipo Lotes / terrenos
cochera cochera
disposicion Disposición Interno
antiguedad Antigüedad: A estrenar
situacion Estado: Excelente
superficie Acepta mascotas
Acerca de la propiedad

Hermoso Lote interno, excelente ubicacion dentro del barrio, proximo a la entrada. Fondo a pulmon verde

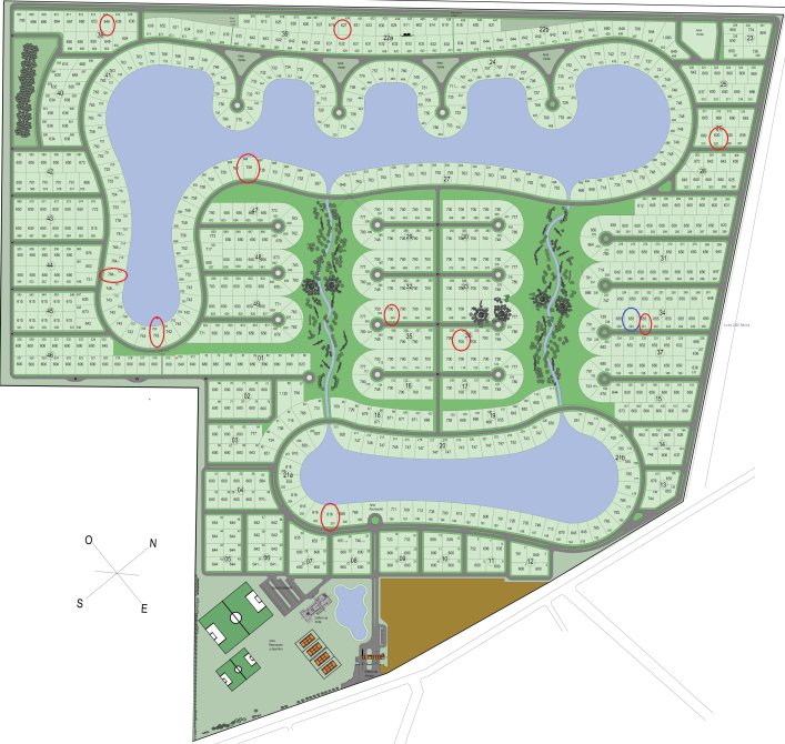
El Club de Campo Horizontes al Sur es un barrio cerrado ubicado en el partido de Presidente Perón, en el sur del Gran Buenos Aires. Se sitúa estratégicamente en el cruce de la Ruta Provincial 16 y el Camino Presidente Néstor Kirchner, formando parte del corredor verde Canning–San Vicente, una de las zonas de mayor crecimiento en los últimos años.  ?



? Características generales
• Superficie total: aproximadamente 110 hectáreas.
• Cantidad de lotes: alrededor de 780, con superficies que varían entre 600 m² y 1.100 m².
• Entorno natural: el barrio cuenta con un frondoso bosque de eucaliptos y diversas especies arbóreas, ofreciendo un ambiente natural y relajante.  ? ?


 Amenities y servicios
• Club House: con Salón de Usos Múltiples (SUM), restaurante, baños y vestuarios.
• Lagunas: dos lagunas centrales aptas para deportes náuticos a vela (sin motor) y pesca deportiva.
• Instalaciones deportivas:
• Canchas de fútbol 11.
• Canchas de tenis.
• Actividades recreativas como yoga, funcional, localizada y zumba.
• Seguridad: vigilancia las 24 horas y cerco perimetral.
• Infraestructura: calles internas asfaltadas y todos los servicios distribuidos por tendido subterráneo (agua, cloacas, electricidad y gas).  ? ? ? ?



Accesos y rutas cercanas
• Ubicación: a solo 40 minutos del Obelisco, con acceso directo por autopista.
• Vías principales:
• Ruta Provincial 16.
• Camino Presidente Néstor Kirchner.
• Ruta Nacional 58, a aproximadamente 1.500 metros.
• Proximidad a localidades:
• A 14 km de Canning, localidad en pleno auge con amplia oferta comercial y educativa.
• A 5 km de San Vicente, que cuenta con una gran cantidad de comercios, bares y restaurantes

Ubicación
Consultar por propiedad
Lote Interno Con Pulmon Verde En Club De Campo Horizontes Al Sur
Venta
USD 35.000

Comunicate con nosotros

error

error

error

error


Propiedades relacionadas
Chatea con nosotros situacion
contacto No dudes en contactarte con nosotros contacto
Whatsapp WHATSAPP telefono LLAMAR
Comunicate con nosotros

error

error

error

error